Řízené větrání už dávno není jen doménou rodinných domů či velkých administrativních budov. Díky řešení firmy Zehnder lze užívat výhody komfortní a zdravé výměny vzduchu i v bytových jednotkách.
Systém komfortního větrání s rekuperací tepla umožňuje interiér nepřetržitě zásobovat čerstvým a čistým vzduchem. Systém navíc z interiéru odvádí CO2 a výrazným způsobem zlepšuje vnitřní klima budovy či bytu. Výsledkem je zdravější prostředí, které umožňuje lepší a kvalitnější odpočinek i významně lepší podmínky pro práci či studium. Komfortní větrání s rekuperací také pomocí jemných filtrů udrží vzduch čistý, zbavený prachu a pylových částic. Zmíněná rekuperace taky významně snižuje spotřebu energie potřebné k vytápění objektu, což oceníte zejména v topné sezoně.
Zehnder představuje technologickou a designovou špičku v oboru řízeného větrání s rekuperací tepla. Desítky let zkušeností s vývojem a výrobou stejně jako nespočet instalovaných větracích systémů svědčí o vysoké kvalitě, spolehlivosti a funkčnosti systémů komfortního větrání Zehnder, podtržené možnosti získání prodloužené 5leté záruky – a to bez navýšení ceny.
Série článků na téma větrání s rekuperací
Připravili jsme si pro Vás pět praktických příkladů systémů větrání, které ilustrují řešení v různě velkých objektech s nejčastěji instalovanými větracími jednotkami a systémy rozvodů vzduchu v ČR a na Slovensku.
- Praktický příklad větrání s rekuperací – Rodinný dům
- Praktický příklad větrání s rekuperací – Bungalov
- Praktický příklad větrání s rekuperací – Novostavba bytu
- Praktický příklad větrání s rekuperací – Rekonstrukce bytu
- Praktický příklad větrání s rekuperací – Rekonstrukce bytu s decentrálními jednotkami
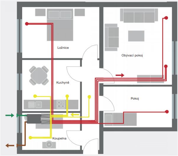
- Byt s rozlohou 96 m2: zelená – venkovní vzduch, červená – přiváděný vzduch, žlutá – odváděný vzduch, hnědá – odvětrávaný vzduch
- Půdorys s vedením rozvodů vzduchu
Příklad č. 3: Nový byt v developerském projektu
Systémy řízeného větrání v bytových jednotkách jsou v současnosti spíše výjimkou než pravidlem. Díky prostorově nenáročnému a tichému řešení společnosti Zehnder mohou ale výhody plynoucí z řízené výměny vzduchu využít i uživatelé bytů.
Typ objektu: byt 95 m2, novostavba
Větrací jednotka: Paul Climos 200 ECO
Umístění jednotky: doporučená ve stropním podhledu v blízkosti nasávání venkovního vzduchu, např. koupelna
Rozvody vzduchu: kulaté větrací trubky Zehnder ComfoTube 75
Instalace rozvodů: ve stropním podhledu
Popis návrhu
Větrací systém je redukovaný na minimální počet prvků a krátké rozvody vzduchu, vedoucí k dosaženi maximální energetické účinnosti s velmi tichým provozem. Větrací trubky jsou vedeny ve stropním podhledu. Ten je vytvořen rovněž v koupelně – v tomto případě je koupelna umístěná mimo jádro objektu, proto bylo optimální instalovat větrací jednotku právě zde. Sklopná servisní dvířka umožňují snadnou výměnu filtrů. Podhled je navíc využitý pro stropní osvětlení. Srdcem systému je větrací jednotka Paul Climos 200 Eco, která je vybavena entalpickým výměníkem, díky kterému nevzniká kondenzát a nemusíme řešit jeho odvod, což významně snižuje cenu instalace.
Inteligentní systém ovládání
Jednotka se standardně obsluhuje pomocí jednoduchého ovladače, který je součástí dodávky a představuje dobrou volbu pro projekty, u kterých je požadavek na klientsky jednoduchý systém řízeného větrání samostatných bytů.
U developerských projektů, vyžadujících komfortnější řešení, lze jednotku doplnit o inteligentní řídicí systém, umožňující ovládání více technologií jako větrání, vytápění, chlazení, ovládání žaluzií nebo světel, a to vše pohodlně v jedné mobilní aplikaci. Toto řešení, od spolupracujícího dodavatele, Zehnder již úspěšně vyzkoušel na několika realizacích.
Větrací jednotka Paul Climos 200 Eco
Větrací objem: 200 m3/h, vhodné pro RD/byty s plochou 140 m2
Účinnost: 85 %
Spotřeba při běžném provozu: 30W
Hlučnost (3m od jednotky): 30dB
Větrací jednotka s rekuperací
Komfortní větrací jednotka Paul Climos 200 Eco je standardně dodávaná s integrovaným předehřevem a entalpickým výměníkem. Díky tomu a kompaktním rozměrům, s výškou jen 25 cm, je obzvláště vhodná pro montáž do stropních podhledů. Kombinace elektrického předehřevu 700 W a přirozené odolnosti entalpického výměníku zaručuje protizámrazovou ochranu výměníku tepla a rovnotlaký provoz až do -19 °C bez omezování přívodu čerstvého vzduchu – což přispívá ke splnění standardů vnitřního mikroklimatu z pohledu výměny větracího vzduchu.
Za zmínku stojí i vyšší kvalita filtrů s velkou filtrační plochou (rozvinutá délka filtru 1,9 m/plocha 0,323 m2), která prodlužuje dobu životnosti filtrů a snižuje hlučnost jednotky (na rozdíl od filtrů s malou plochou, které se rychleji zanáší nečistotami a tím vzrůstá tlaková ztráta, potřebný výkon ventilátorů a hlučnost).
Vzduch je veden pomocí soustavy větracích trubek ComfoTube 75 vyrobených z nezávadného plastu (je antibakteriální, antistatický) o průměru 75 mm. Hladký vnitřní povrch Clinside výrazně omezuje usazování prachu a umožňuje snadné čištění. 3-4x větší ohebnost než u běžných trubek snižuje čas a cenu instalace, poloviční tlakové ztráty zase umožňují tišší chod.
Tichý provoz
Akustický komfort má v bytech stejnou důležitost jako v rodinných domech. Kvůli většímu množství sousedů a obvykle i umístění blíže uliční frontě jsou obyvatelé bytů vystaveni mnohem větší hlukové zátěži. Výhodou řešení společnosti Zehnder je, že omezuje zvukovou zátěž na minimum. Akustický tlumič s rozdělovačem Zehnder ComfoWell je modulární systém pro snadnou a prostorově nenáročnou montáž. Skládá se z tlumiče hluku, ke kterému je připojena koncová a montážní deska s funkcí rozdělovače nebo rovněž jemný filtr F9 či uhlíkový filtr. Zehnder ComfoWell je jediný čistitelný tlumič na trhu, který navíc umožňuje přistup pro čištěni celého systému. Zabraňuje přeslechu mezi místnostmi a tlumí zvuk jednotky.
- tlumič s rozdělovačem Zehnder ComfoWell
- tlumič s rozdělovačem Zehnder ComfoWell
Rychlá instalace, pevný a těsný spoj
Obvykle nepříliš velkorysé prostory bytových jednotek či naopak těžce přístupné fasády zejména vyšších podlaží jsou obzvláště náročné na pohodlnou a praktickou instalaci vzduchových rozvodů. Kryt vývodu vzduchu TVA-P od firmy Zehnder umožňuje takovou snadnou instalaci díky integrovaným patkám. Pevné a dokonale těsné spojení s větrací trubkou 75 nebo 90 mm je zajištěno pomocí O-kroužků a fixačních spon. Výrobce myslí i na detaily, proto je TVA-P dodáván vč. krytek, zabraňující vnikání nečistot během instalace. Na přání je možné osadit filtry DN125 pro talířové ventily odváděného vzduchu.
Dokonalý vzhled
Při instalaci systému v bytě rozhodně nechcete, aby celkový design interiéru narušovaly nevzhledné ventily či mřížky. Svou širokou nabídkou ventilů a designových mřížek Zehnder dokazuje, že řízené větrání přispívá k estetické stránce interiéru. Tyto produkty diskrétně zakrývají výstupy pro přívod a odvod vzduchu. Jsou k dostání z nerezové oceli nebo bílé lakované. Při použití pro odvod vzduchu je lze doplnit filtry, zabraňující znečištění větracích trubek. Toto řešení poskytuje jedině švýcarská společnost Zehnder.
(Na větrací jednotky Zehnder lze nyní navíc získat prodlouženou záruku 5 let, více na www.zehnder.cz/plus_zaruka_5)
V případě jakýchkoliv dotazů k návrhu větrání nebo žádosti o individuální návrh konceptu komfortního větrání jsme Vám rádi k dispozici:
M +420 735 174 074, T +420 383 136 222, info@zehnder.cz
Celý katalog s praktickými příklady návrhů větrání si můžete stáhnout zde
















